Departamento
Jacinto Diaz 323
Venta
U$S 185.000
Ubicación
Jacinto Diaz 323 La Calabria
San Isidro
De Brasi Propiedades
Tel/Fax: (54 11) 4747-4042
info@debrasi.com.ar
Compartí
Descripción
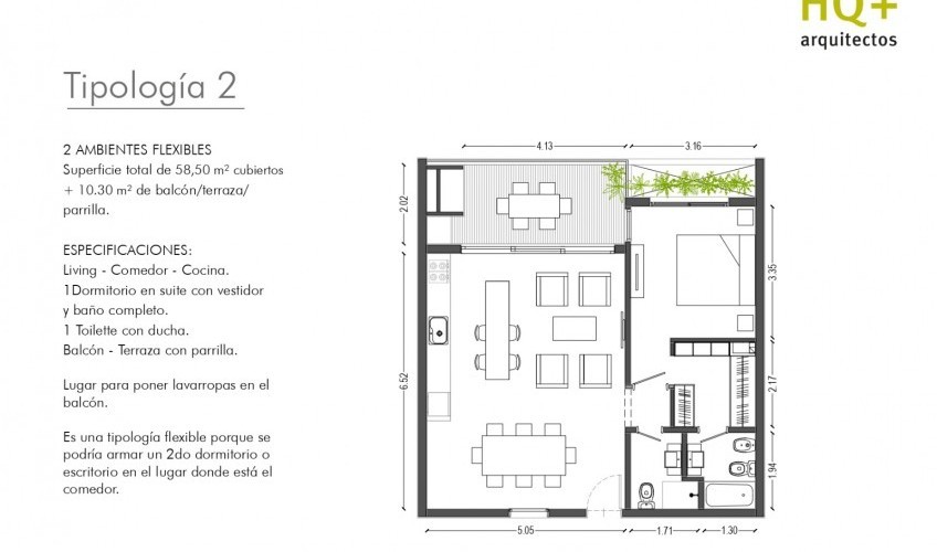
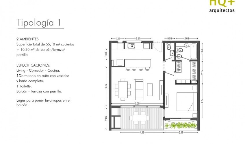
Departamentos semipisos a estrenar (total 6 deptos) en San Isidro sobre calle Jacinto Diaz al 300, a mts de Av Centenario. Ultimas unidad disponible. Piso 3° al FRENTE de 67m2 totales y 56.70m2 cubiertos.
Living comedor de 5 x 3,71mts con gran ventanal y salida a balcón terraza de 5mts x 2mts con parrilla, cocina con barra, muebles completos. Espacio lavarropas separado. Toilette, Un dormitorio de 3.35 x 3.17 más vestidor + baño en suite.
Cochera doble descubierta.
Entrega Febrero 26
Información de la propiedad
- Superficie del terreno
- 67
- Superficie cubierta
- 57
AVISO IMPORTANTE: La oferta de este inmueble es solo a título informativo, pues la venta de la propiedad está supeditada a que el propietario cumplimente el trámite ante la A.F.I.P para la obtención del nro. de C.O.T.I
Las medidas son orientativas y surgirán del título de propiedad.








